Избранное
Популярные категории
Деревообработка
Дополнительное оборудование
Металлообработка
Оборудование для переработки проволоки
Оборудование для пищевой промышленности
Полимерное оборудование
Прочее оборудование
Сельскохозяйственное оборудование
Строительная техника
Товарные излишки
плоскошлифовальный станок CORMAK 400x1000 automatic
плоскошлифовальный станок CORMAK 400x1000 automatic
плоскошлифовальный станок CORMAK 400x1000 automatic
плоскошлифовальный станок CORMAK 400x1000 automatic
плоскошлифовальный станок CORMAK 400x1000 automatic
плоскошлифовальный станок

плоскошлифовальный станок CORMAK 400x1000 automatic

Год выпуска
2025
Состояние
новое
Цена без учета НДС
5789560.00
Позвонить Написать нам в телеграм
Отправить сообщение
Описание

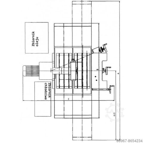
Шлифовальный станок для непрерывной работы на производстве, Большой диапазон шлифования и программируемый контроллер SIEMENS PLC, Отличается современной стабильной конструкцией. Бабка перемещается по двум парам направляющих. Автоматическая подача по 3 осям, цифровая индикация в стандартной комплектации.
Характеристики станка
Автоматическая подача по 3 осям
Цифровое считывание
Надежная конструкция
Очень высокая точность
Технические характеристики
Размер рабочего стола 406x1020 мм
Отверстие стола 14x3 мм
Скорость продольного перемещения стола 7~23 м/мин
Максимальное расстояние от поверхности стола до центра шпинделя 570 (460) мм
Максимальная грузоподъемность (включая рукоятку) 600 кг
Автоматическая прерывистая подача (поперечное перемещение стола) 0,1~8 мм
Ускоренная подача (поперечное перемещение стола) 990 мм/мин
Подача маховика 0,02 (0,001") мм 5 (0,2") мм
Размер шлифовального круга 350 x 40 x 127 мм
Скорость вращения шлифовального круга 1450 об/мин
Самоподача (вертикальный ход) 0,005/0,01/0,02/ 0,03/0,04/0,05 мм
Ускоренная подача (вертикальное перемещение) 480 мм/мин
Скорость подачи маховика (вертикальный ход) 0,005 (0,0002') мм/дел.
1 (0,04') мм/об.
Двигатель шпинделя 5,5 кВт
Двигатель масляного насоса 2,2 кВт
Двигатель охлаждающего насоса 0,14 кВт
Привод вертикального двигателя 1 кВт
Привод поперечного двигателя 0,04 кВт
Вес 4000 кг
Размеры машины 4400 x 2400 мм
Оборудование в зависимости от версии
Bsc R Nc Iekkdp Ijfnedd
Цифровой считыватель
Магнитный стол 406x1020
Шлифовальный диск
Опора для балансировки шлифовального диска
Держатель шлифовального диска
Система охлаждения
Устройство для правки шлифовальных кругов
Отделитель стружки
Система галогенного освещения
Указанная цена является чистой. Цена не включает транспортные расходы.
Для получения дополнительной информации, пожалуйста, свяжитесь с нами по телефону или электронной почте. Мы приглашаем вас ознакомиться с нашим предложением на нашем сайте.
плоскошлифовальный станок

плоскошлифовальный станок CORMAK 400x1000 automatic

Год выпуска
2025
Состояние
новое
Цена без учета НДС
5789560.00
Позвонить Написать нам в телеграм
Отправить сообщение
Другие товары из коллекции
HFS 40100 F Advance KNUTH Werkzeugmaschinen HFS 40100 F Advance
HFS 40100 F Advance
Состояние
новое
Модель
HFS 40100 F Advance
Поверхностно-шлифовальный станок - горизонтальный ELB-ORION 1555
Поверхностно-шлифовальный станок - горизонтальный
Год выпуска
1990
Состояние
б/у
Модель
1555
Поверхностно-шлифовальный станок - горизонтальный GEIBEL & HOTZ FS 1050 GT CNC Rh
Поверхностно-шлифовальный станок - горизонтальный
Год выпуска
2000
Состояние
б/у
Модель
FS 1050 GT CNC Rh
Плоскошлифовальный станок MAGERLE F12
Плоскошлифовальный станок
Состояние
хорошее состояние (б/у)
Модель
F12
Плоскошлифовальный станок CHEVALIER FSG-1632ADIV
Плоскошлифовальный станок
Состояние
новое
Модель
FSG-1632ADIV
Горизонтальный плоскошлифовальный станок Rosa ER 10
Горизонтальный плоскошлифовальный станок
Год выпуска
1990
Состояние
хорошее состояние (б/у)
Модель
ER 10
Плоскошлифовальный станок MININI - PL 7/1000 Minini PL 7/1000
Плоскошлифовальный станок MININI - PL 7/1000
Год выпуска
1998
Состояние
хорошее состояние (б/у)
Модель
PL 7/1000
Плоскошлифовальный станок FAVRETTO MB 130
Плоскошлифовальный станок
Год выпуска
1992
Состояние
хорошее состояние (б/у)
Модель
MB 130
Поверхности шлифовальный станок - горизонтальный MAEGERLE MGC 130
Поверхности шлифовальный станок - горизонтальный
Год выпуска
1997
Состояние
б/у
Модель
MGC 130
Плоскошлифовальный станок ELB Perfekt BD 10 750 SPS
Плоскошлифовальный станок
Год выпуска
2004
Состояние
капитально восстановленный (б/у)
Модель
Perfekt BD 10 750 SPS
Плоскошлифовальный станок ABA Z&B SCHLEIFMASCHINEN GMBH ECOLINE 1206A
Плоскошлифовальный станок
Год выпуска
2008
Состояние
хорошее состояние (б/у)
Модель
ECOLINE 1206A
Плоскошлифовальный станок FAVRETTO MFD 200 CNC
Плоскошлифовальный станок
Год выпуска
2004
Состояние
хорошее состояние (б/у)
Модель
MFD 200 CNC
Плоскошлифовальный станок Danobat RT-3200
Плоскошлифовальный станок
Состояние
отличное состояние (б/у)
Модель
RT-3200
Плоскошлифовальный станок ELB-SCHLIFF SWBE 010 NPC-K
Плоскошлифовальный станок
Год выпуска
1988
Состояние
хорошее состояние (б/у)
Модель
SWBE 010 NPC-K
Плоскошлифовальный станок GEIBEL + HOTZ FS 1570 GT SA
Плоскошлифовальный станок
Год выпуска
2002
Состояние
б/у
Модель
FS 1570 GT SA
Плоскошлифовальный станок Minini 2000 613A
Плоскошлифовальный станок
Год выпуска
1997
Состояние
хорошее состояние (б/у)
Модель
613A